2021

glebe.


TAFE NSW ULTIMO: Diploma of Building Design

Software:

  • REVIT

  • Adobe Photoshop

Details:

  • multi-unit terrace

  • residential

  • development application

  • construction certificate

  • architectural drawings + notations

  • walkthrough video

Second major project

The glebe project is a multi-unit terrace designed to support the growing population of Sydney’s residents through modernity and sustainability. It features eco-friendly materials and greener solutions to everyday living.

The assignments key goals were to ensure an eco-friendly solution that is modern. A roof top garden, skylight, rainwater collection system & use of recycled materials are examples of the buildings sustainability. It contains the usual living necessities with 3 bedrooms, extra powder room, ensuite and garage. Each units layout is identical to each other with 4 floor plans:

  • 0 - Underground garage

  • 1 - Living, kitchen, courtyard

  • 2 - bedrooms, bathroom

  • 3 - Rooftop garden

The layout has been designed to benefit the sites surroundings & offer the best experience for each room. The garage is kept hidden underground while the living area is immediately presented on the 1st floor with plenty of lighting through the stairs’ skylights and opposing windows. The 2nd floor also receives natural light and is kept away from the high flow rooms to create mindfulness for the bedrooms. Continue to the 3rd floor, which contains the roof top garden and captivating view of the suburb. Each floor is easily accessible via the stacked staircase, which also holds the most lighting in the unit as the skylight benefits from the sites sun path.

This project has helped me understand the full process of designing a sustainable building that complies with government requirements, from preparing DA and CC documentation to developing accurate architectural details.

walkthrough.

This was my first walkthrough video that was produced using REVIT’s built in camera tools. It demonstrates the final terrace design with the neighbouring buildings and colours/textures. Please adjust the volume.

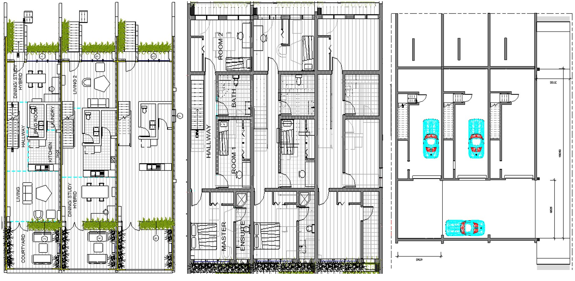
design application.

Pages that demonstrate the key design elements of the terrace and impact to its surroundings.

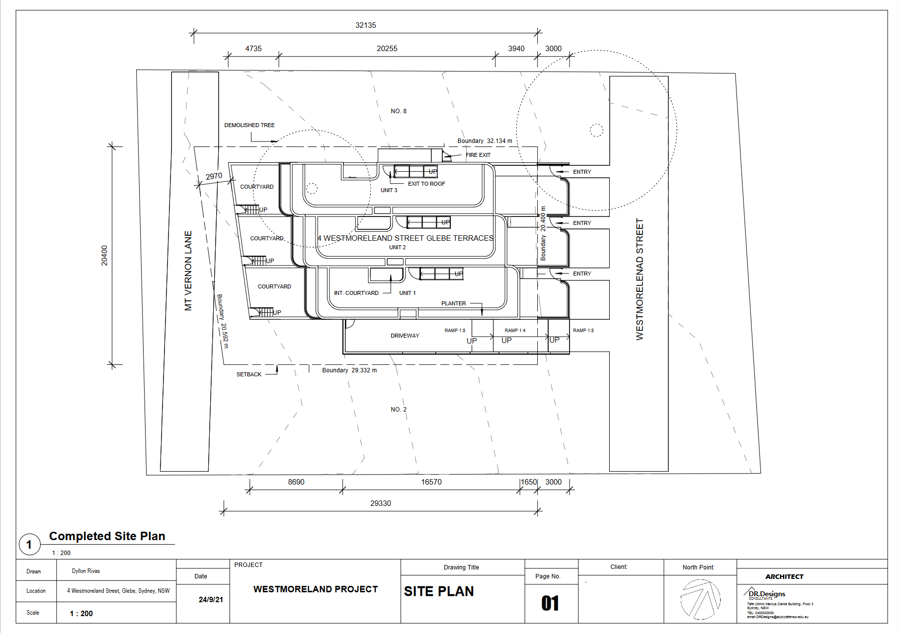
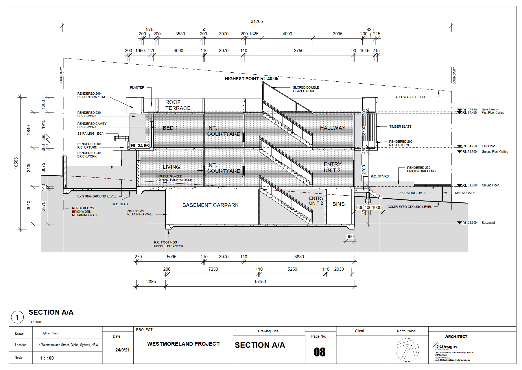
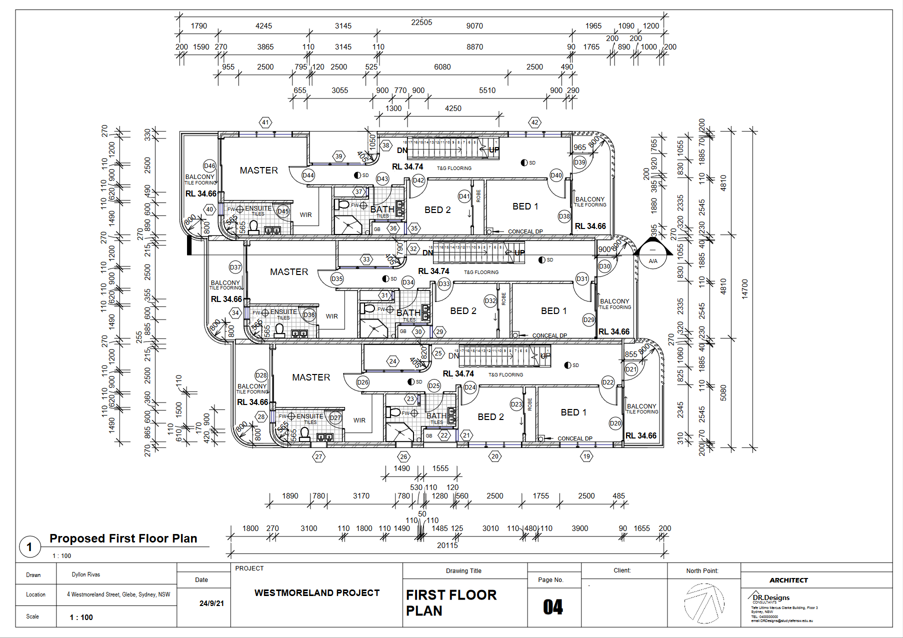
construction certificate.

These drawings provide detailed measurements & annotations of the terrace for the construction process.

concept design.

This walkthrough video was my first draft of the terrace and was intended as the final design. However, it was later scraped and redesigned to meet the Building Code of Australia (BCA) for the construction certificate. The design was built using REVIT & Minecraft for the walkthrough (a fun little concept video to help bring out my idea - this was not included in the final project).

inspiration.

Previous
Previous

darlington.

Next
Next

lyton.